-
- Tổng tiền thanh toán:
Giải pháp quản lý kho thông minh bằng công nghệ RFID
Tổng quan hệ thống kho thông minh
Giới thiệu
Cạnh tranh thương mại toàn cầu của thế kỷ 21 không chỉ là sự cạnh tranh cá nhân về công nghệ, chi phí và quản lý, mà còn là sự cạnh tranh toàn diện của chuỗi cung ứng toàn cầu trong sự cân bằng thương mại. Đó là điều cần thiết cho doanh nghiệp để cải thiện hiệu quả sản xuất và giảm chi phí hoạt động.
Các vấn đề được tìm thấy nhanh chóng trong quản lý kho có thể được cải thiện, thiết kế và thiết lập một bộ quy trình quản lý kho hoàn chỉnh, do đó tốc độ quay vòng lưu trữ có thể được tăng cường, có thể giảm tỷ lệ sử dụng vốn lưu động, tài sản đóng băng có thể đổi thành tiền mặt và chi phí gây ra bởi việc loại bỏ tồn kho có thể được giảm.
Các Doanh nghiệp bán lẻ các công ty đa quốc gia đầu tư đáng kể vào chiến lược chuỗi cung ứng, chương trình, quản lý vận hành, quy hoạch trung tâm phân phối, quy hoạch kho, v.v. và sử dụng công nghệ tiên tiến để xây dựng hệ thống vận hành nhanh chóng và hiệu quả. Sử dụng công nghệ RFID quản lý kho hàng hóa, xác định các pallet, đơn giản hóa quy trình vận hành và nâng cao hiệu quả làm việc, để có thể giảm bớt cường độ lao động của nhân viên quản lý kho đồng thời tăng độ chính xác, nhanh chóng khi audit .

Tình hình hiện tại của các hệ thống quản lý kho
Các hệ thống quản lý kho hiện tại luôn sử dụng công nghệ mã vạch barcode, hoặc viết thủ công các tài liệu quản lý kho, v.v. Nhưng mã vạch dễ sao chép và không chống ẩm, không hoạt động trong một số môi trường đặc biệt, cũng như sự phức tạp của việc viết thủ công, có thể dễ dàng gây ra tổn thất cho con người và các vấn đề khác. Quản lý kho dựa trên con người là không hiệu quả, và tốn thời gian và mệt mỏi để sắp xếp hàng hóa, tìm kiếm hàng hóa và kiểm tra hàng tồn kho, do đó có những khiếm khuyết trong quản lý kho.
Sử dụng công nghệ RFID quản lý giải pháp kho thông minh, trước tiên, mỗi mục nên được gắn thẻ RFID, đầu đọc cố định RFID được cài đặt ở hai bên lối đi sẽ xác định dữ liệu thẻ để đánh giá luồng vận hành, như đăng ký, kiểm tra, chuyển nhượng, phân bổ, hàng tồn kho, vv .. Dữ liệu thẻ có thể được tự động thu thập thông qua đầu đọc RFID, điều này sẽ đảm bảo tốc độ nhập dữ liệu của từng bước và độ chính xác, đảm bảo công ty biết kịp thời / chính xác dữ liệu lưu trữ và nhận ra hàng hóa hiệu quả cao và tìm kiếm thời gian thực và thời gian thực audit , nâng cao hiệu quả làm việc của quản lý kho và bảo lãnh cho việc tiêu tốn thời gian và mệt mỏi, giúp giữ và kiểm soát kho một cách hợp lý, để làm cho doanh nghiệp quay vòng vốn hiệu quả. Một bộ mã khoa học có thể quản lý thuận tiện lô hàng, thời gian đảm bảo chất lượng, vv Chức năng quản lý vị trí có thể truy vấn tất cả vị trí hiện tại của kho.
Nguyên lý hệ thống
Thiết kế hệ thống quản lý kho thông qua ba cấu trúc sau:
- Lớp thu thập thông tin: Mỗi mục sẽ được thông qua bằng thẻ rfid, hàng hóa có thể được xác định bằng số ID duy nhất và mã người dùng. Reader có thể tự động nắm bắt thông tin gắn thẻ, để nhận ra chức năng thu thập thông tin của hàng hóa.
- Lớp truyền dữ liệu: Thông tin thẻ được ghi bởi trình đọc RFID sẽ được tải lên hệ thống dự phòng để phân tích thông qua các giao diện liên lạc liên quan, chẳng hạn như RS-232, RS-485, Ethernet, WIFI hoặc GPRS, v.v. Và giao diện truyền thông của nó cũng có thể được tùy chỉnh theo yêu cầu cụ thể của người dùng .
- Lớp quản lý hàng hóa : Sau khi thiết bị đầu cuối PC hoặc trung tâm dữ liệu nền nhận dữ liệu từ đầu đọc, nó sẽ phân tích các dữ liệu này, để ước tính lối vào, lối ra, chuyển, audit , v.v. Trong khi đó, danh sách chi tiết của bảng sẽ được tạo tương ứng và được xử lý trong hệ thống.
Phần cứng hệ thống quản lý kho RFID chủ yếu bao gồm thẻ RFID, đầu đọc cố định, đầu đọc cầm tay, máy chủ, máy tính cá nhân, vv, có thể đạt được kết nối và trao đổi dữ liệu qua mạng. Phần mềm hệ thống quản lý kho RFID bao gồm hệ thống quản lý chuỗi cung ứng, hệ thống phát hành thẻ RFID và hệ thống thu nhận thẻ RFID, các hệ thống này sẽ được kết nối với nhau và hoàn thành mọi luồng quản lý hàng hóa cùng nhau. Hệ thống quản lý cơ sở dữ liệu dự phòng là trung tâm của toàn bộ hệ thống, thu thập nhận dạng RFID là nền tảng và phương pháp thực hiện chức năng quản lý.
Hệ thống quản lý chuỗi cung ứng
Hệ thống quản lý chuỗi cung ứng bao gồm máy chủ cơ sở dữ liệu và thiết bị đầu cuối quản lý, là trung tâm dữ liệu của hệ thống và chịu trách nhiệm giao tiếp với dữ liệu người đọc, chuyển đổi dữ liệu do người đọc tải lên và chèn vào cơ sở dữ liệu của hệ thống quản lý chuỗi cung ứng, để thông tin quản lý thẻ được cung cấp. , phát hành thẻ và nắm bắt thông tin thẻ có thể được lưu và xử lý.
Hệ thống phát hành thẻ
Hệ thống phát hành thẻ RFID bao gồm phần mềm quản lý thông tin thẻ và máy tính để bàn RFID, chịu trách nhiệm ghi thông tin về thẻ vị trí, thẻ vật phẩm và thẻ gói, cũng như sửa đổi, ủy quyền và mã hóa số ID thẻ, v.v. được nhúng vào hệ thống dự phòng để đạt được sự tương ứng một-một của hệ thống chuỗi cung ứng.
Hệ thống thu thập thông tin thẻ RFID
Hệ thống thu thập thẻ RFID bao gồm đầu đọc cố định, đầu đọc cầm tay và thẻ. Thông tin thẻ của hàng hóa có thể được xác định tự động bởi đầu đọc cố định và đầu đọc cầm tay, sẽ được tải lên hệ thống dự phòng để phân tích và phân loại, để đánh giá việc kiểm tra, kiểm tra, phân bổ và duy trì lưu lượng hàng hóa, v.v.
Mô đun chức năng hệ thống
Hệ thống quản lý kho RFID bao gồm thẻ đăng ký, quản lý kiểm tra, quản lý đăng ký, phân bổ, lấy hàng và các chức năng bổ sung. Hệ thống quản lý kiểm tra bao gồm ứng dụng hàng hóa đi, nhận dạng hàng hóa đi, tải xuống hồ sơ đi. Hệ thống quản lý check-in chứa cài đặt phân phối vị trí, dỡ nhận dạng hàng hóa và quản lý hồ sơ check-in, check out.
Quy trình làm việc
Đăng ký thẻ và đính kèm thẻ
Mỗi mục mới được gắn vào thẻ RFID phù hợp. ID thẻ duy nhất hoặc dữ liệu viết của người dùng có thể được coi là số nhận dạng hàng hóa và những dữ liệu này có thể được ghi lại dưới dạng tên mặt hàng, thời gian mua, số kho, thuộc tính hàng hóa, v.v. Khi đầu đọc RFID được cài đặt ở mỗi lối đi xác định dữ liệu thẻ sẽ được ghi nhận tự động.
Ghi nhận dữ liệu vị trí
Đầu tiên hàng hóa nhập vào kho cần được bố trí vị trí lưu trữ trong hệ thống, như loại vật phẩm, số kho, số kệ; Thứ hai, tất cả hàng hóa gắn thẻ RFID sẽ được gửi đến khu vực kho, sau đó chuyển đến kho từ đường. Khi đi qua lối đi, đầu đọc RFID sẽ tự động xác định thông tin thẻ, nếu thông tin thẻ và số lượng được xác định bởi đầu đọc RFID là đúng, những hàng hóa này sẽ đăng ký; nếu thông tin thẻ được xác định bởi người đọc là sai hoặc số lượng ít hơn, hệ thống sẽ được nhắc; Khi kiểm tra hàng hóa, nhà điều hành sẽ đưa hàng hóa vào khu vực kho tương ứng theo thông tin thẻ và nhắc nhở hệ thống chính xác, trong khi đó hệ thống sẽ tự động cập nhật thông tin hàng hóa (ngày, nguyên liệu, phân loại, số lượng, v.v.) và tạo danh sách chi tiết của đăng ký vào.

Xuất hàng hóa
Khi đăng ký xuất hàng hóa, phải điền vào mẫu đơn đăng ký của hàng hóa bên ngoài trên máy tính cá nhân hoặc Tablet.
Sau khi nhân viên kho nhận được đơn đặt hàng bên ngoài, họ có thể tìm kiếm các mục tương ứng bằng đầu đọc cầm tay hoặc máy chủ truy vấn RFID và đặt các mục vào khu vực bên ngoài.
Hàng hóa gắn thẻ RFID gắn ngoài sẽ được xác định bằng đầu đọc cố định RFID được cài đặt ở lối đi, sau đó tải lên xe tải.
Đầu đọc cố định RFID sẽ xác định thông tin thẻ RFID và kiểm tra bằng hình thức thanh toán, sau đó xác nhận xem hàng hóa được tải trên xe tải có khớp hay không, nếu không, đầu đọc RFID sẽ xác định nhiều lần hoặc thêm hàng tồn kho.
Hệ thống sẽ tự động cập nhật thông tin hàng hóa (ngày, vật liệu, phân loại, số lượng, v.v.) và tạo danh sách chi tiết thanh toán.

Phân bổ và chuyển nhượng hàng hóa
Đối với hàng hóa được phân bổ và di chuyển, khi hàng hóa được chuyển qua đường, nó sẽ được xác định bởi đầu đọc RFID được cài đặt ở hai bên đường và thông tin thẻ hiện tại sẽ được ghi bởi người đọc để tải lên trung tâm dự phòng. Theo trình tự của thẻ được xác định, trung tâm sao lưu có thể ước tính thẻ đó là đăng ký, trả phòng hoặc phân bổ, v.v.
Sử dụng đầu đọc cầm tay RFID có thể vận hành hàng hóa đã di chuyển, khi hàng hóa được đặt sai vị trí, nhân viên kho sẽ đặt chúng vào đúng vị trí thủ công. Đồng thời thông tin thẻ có thể được sửa đổi bằng đầu đọc cầm tay RFID và gửi đến máy chủ, để nó có thể nhận ra chức năng di chuyển nhanh chóng và thuận tiện quản lý kho.
Kiểm tra thông tin thẻ phân bổ hàng hóa với hệ thống
Thông tin thẻ đính kèm về phân bổ hàng hóa có thể được ghi lại bằng đầu đọc cầm tay RFID, sau đó thông tin này sẽ được kiểm tra với thông tin trong hệ thống quản lý kho; nhân viên kho chỉ cần giữ đầu đọc cầm tay và đi qua phân bổ hàng hóa để hoàn thành hàng tồn kho.
Kiểm tra thông tin thẻ của hàng hóa được chỉ định với hệ thống
Thông qua việc kiểm tra thông tin thẻ của hàng hóa cụ thể với thông tin tồn kho trong hệ thống quản lý kho, hoạt động chi tiết như dưới đây,
Sau khi máy chủ tạo hướng dẫn vận hành hàng tồn kho, nhà điều hành sẽ lấy hàng tồn kho trong mỗi lần phân bổ hàng hóa bằng đầu đọc cầm tay. Khi tất cả các mục được phân bổ hàng hóa được quét bởi đầu đọc cầm tay, đầu đọc này sẽ xác nhận và lấy tất cả dữ liệu hàng tồn kho, những dữ liệu này bao gồm cả nhật ký vận hành sẽ gửi lại máy chủ. So sánh thông tin hàng tồn kho hiện tại từ máy chủ với thông tin thẻ của giá và thông tin tồn kho ban đầu, thì số dư giữa chúng sẽ được xử lý.
Chức năng bổ sung của hệ thống
- Cảnh báo hàng tồn kho : Khi hàng tồn kho trong kho ít hơn hàng tồn kho bình thường, hệ thống sẽ nhắc thêm stock kho để tránh tình trạng hàng tồn kho không đủ.
- Cảnh báo sẽ được cảnh báo khi hàng hóa được gỡ bỏ hoặc lấy mà không được phép
- Khi hàng hóa bị xóa hoặc lấy đi mà không có sự cho phép, người đọc xác định những thông tin này và gửi đến hệ thống để báo động, để tránh hàng hóa bị mất hoặc bị đánh cắp.
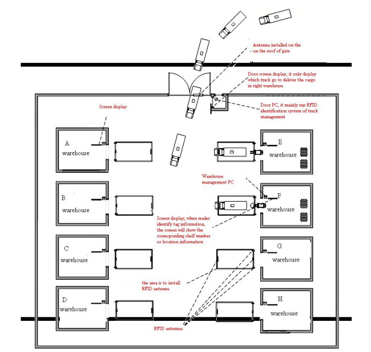
Lắp đặt hệ thống
Đầu đọc cố định RFID được lắp đặt ở hai bên cổng thuận tiện để xác định việc nhận và trả hàng. Đầu đọc và màn hình hiển thị cố định RFID được lắp đặt tại cổng kho có thể phát hiện thông số kỹ thuật của hàng hóa bên trong.

Tính năng hệ thống
Thực hiện quản lý nhập trước xuất trước đối với hàng hóa
Hệ thống quản lý kho RFID sử dụng công nghệ RFID, WLAN, cơ sở dữ liệu tiên tiến, vv kết hợp toàn bộ quản lý kho với công nghệ nhận dạng RFID, cho phép hoàn thành hiệu quả các loại hoạt động kinh doanh, cải thiện quản lý kho và nâng cao hiệu quả và giá trị.
Đối với mỗi phần của hàng hóa nhập kho, hệ thống sẽ tự động ghi lại thời gian nhận phòng, địa điểm, vv Khi hàng hóa thanh toán, quản lý nhập trước xuất trước sẽ được thực hiện.
Quản lý lưu trữ thời gian thực cho kho
Quản lý lưu trữ của kho truyền thống phụ thuộc vào báo cáo thủ công và thống kê nhân tạo, để mọi bộ phận có thể GÓI kịp thời và biết chính xác về thông tin lưu trữ. Bên cạnh đó, với sự phát triển kinh doanh, số lượng và chủng loại hàng hóa được mở rộng dần, cũng như nhu cầu của khách hàng trở nên phức tạp hàng ngày. Quản lý kho thời gian thực đã trở thành yếu tố thiết yếu sẽ ảnh hưởng đến việc thiết lập hệ thống vận hành nhanh chóng và hiệu quả. Quản lý kho dựa trên RFID có thể biết thời gian thực và chính xác các bản cập nhật lưu trữ, có thể cung cấp bằng chứng khoa học cho các nhà lãnh đạo và bộ phận liên quan có thể tối ưu hóa kho và quyết định quản lý sản xuất.
Quản lý thông tin vật lý chi tiết theo 3 chiều
Việc ứng dụng các công nghệ mới RTLS với nguyên lý tương tự, chúng ta có thể theo dõi chính xác vị trí trong lĩnh vực 3 chiều của kho, các nguyên vật liệu và con người di chuyển trong kho bãi.
Tài liệu theo dõi và quản lý hình ảnh
Hệ thống này có thể thực hiện chức năng theo dõi vật liệu và quản lý hình ảnh trên cơ sở đạt được phân bổ hàng hóa của pallet. Chức năng này có thể làm cho hàng tồn kho được phản ánh trực tiếp và nhanh chóng bằng phương pháp đồ họa, cải thiện hiệu quả và độ chính xác của hàng tồn kho trong quản lý hàng hóa và nâng cao tỷ lệ nhận dạng của hàng hóa trong và ngoài quy trình, do đó không cần phải mở hộp cho kiểm tra, đồng thời, nó sẽ xác định nhiều mục, giúp tăng hiệu quả của các mục trong và ngoài.
Giảm thời gian tồn kho và giảm chi phí phân phối
Việc mua hệ thống quản lý stock kho truyền thống là tốn thời gian và mệt mỏi. Hệ thống quản lý kho dựa trên RFID giúp giảm thời gian audit , tăng cường tính tức thời của dữ liệu và nắm bắt thông tin hàng tồn kho một cách linh hoạt, để nhận ra việc quản lý trực quan hàng hóa lưu trữ. Bên cạnh đó, quản lý kho RFID có thể cải thiện hiệu quả và độ chính xác của quá trình lựa chọn và phân phối, và tăng tốc độ phân phối, để giải phóng lực lượng lao động của công nhân.